i房网APP免费下载
随时随地关注楼盘
关闭

保利罗兰国际 [萝岗区] 价格: 3.35万元/平米

楼盘类型:住宅
项目位置:萝岗国际演艺中心东南向(开创大道与开达路交界处)
面积段:84 - 172
开盘时间:2017年5月27日14、19栋已开盘
入住时间:预计2018年下半年11栋、15-18栋、24、25、27栋
物业费:2.80元/㎡·月
售楼地址:广州市萝岗开创大道国际演艺中心东南向
地铁沿线:6号线
开发商:广州萝城房地产开发有限公司

咨询热线:400-9999-938
咨询热线:(020)28137788或13926137788

户型介绍

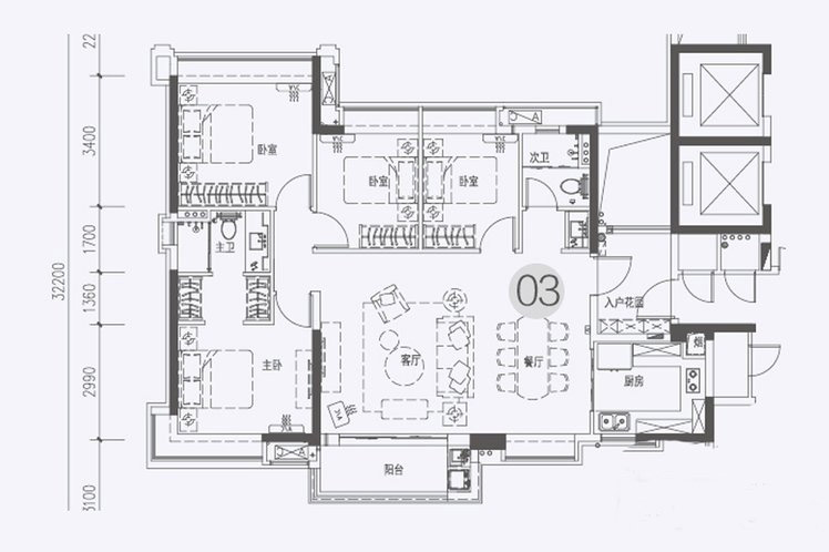
15栋01单元
15栋01单元
15栋02单元
15栋02单元
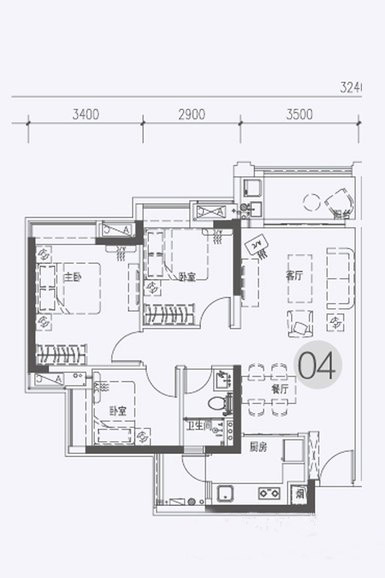
15栋04单元
15栋04单元
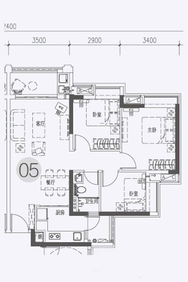
15栋05单元
15栋05单元
15栋03单元
15栋03单元
15栋06单元
15栋06单元

保利·罗兰国际处于萝岗区府中心,位于开创大道及开达路交界处,萝岗大型高尚居住区;同时也是保利地产携第五代全龄居产品重回萝岗的诚意之作。

幼儿园:园区配套幼儿园

中小学:省一级重点中学广州市二中、国家级玉岩中学、广州市91中学、省一级萝峰小学、香雪小学

大学:暂无

综合商场:香雪商贸城,时尚购物旗舰高德汇购物中心,五星级IMAX巨幕影院,特易购超市、麦德龙超市等

医院:东部最大三级甲等中山大学岭南医院、萝岗中医院

银行:广州农商银行、中国农业银行

邮政:中国邮政

小区内部配套:幼儿园、小学

地铁:6号线萝岗站(750米) 楼巴:逢周末及节假日,由宏发广场出发,每小时一趟; 公交: 萝岗市民广场站: 508路、506路、395路、327路、科学城1号交通专线等 演艺中心北门站:944路、534路、392路、948路、科学城1号交通专线、科学城3号交通专线等 演艺中心南门站: 327路、946路、948路、575路、333路、573路、高峰快线64路、506A路 大朗村(开创大道)站: 327路、946路、333路 开创大道(香雪山南)站: 946路、392路、575路、391路、333路、573路快线、高峰快线64路、324路、科学城3号交通专线

非毛坯

共3629个停车位,其中地上362个,地下3267个

暂无信息